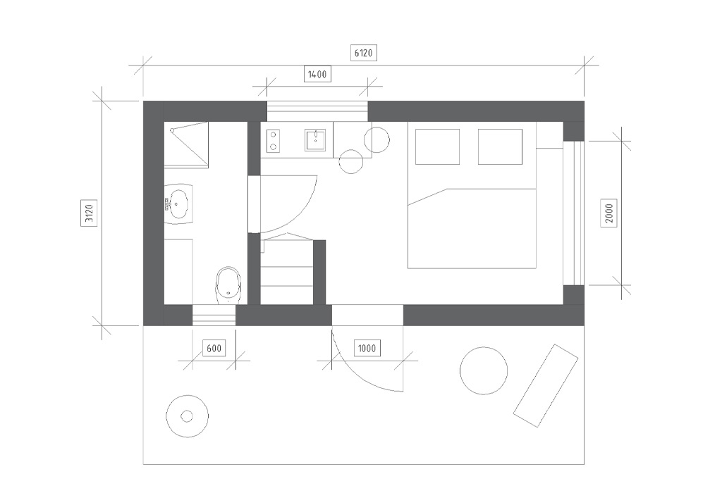
Jarni Modular Homes
Produktion von Modul- und Elementhäusern in Weißrussland für Entwickler in der Europäischen Union
Jarni Modular Homes
Produktion von Modul- und Elementhäusern in Weißrussland für Entwickler in der Europäischen Union

Bildrechte https://jarni.homes

Unsere Häuser werden im Werk mit skandinavischer Technologie aus einem Holzrahmen hergestellt.

Wir können Häuser aus Modulen mit vollständiger Außen- und Innendekoration und integrierter Kommunikation herstellen. Und auch aus Paneelen für die schnelle Montage vor Ort.

Bildrechte https://jarni.homes

Rahmen und Isolierung

  • Der Rahmen ist mit Osprey-Antiseptikum behandelt
  • Basis: Gehobeltes technisches Trockenbrett, kalibriertes Nadelholzprofil 45×195
  • Wände: Gehobelte technische Trocknungsplatte, kalibriertes Nadelholzprofil 45×145 + an der Innenwand des Rahmens ein Balkenprofil 45×45 zur Gegendämmung
  • Dacheindeckung: Gehobeltes technisches Trockenbrett, kalibriertes Nadelholzprofil 45×195
  • Sparrensystem: Gehobeltes technisches Trockenbrett, kalibriertes Nadelholzprofil 45×195 mit Schnitten in Hangrichtung
  • Isolierung: Knauf Insulation Steinwolle (λD W/(mK) 0,036) Boden, Wände, Decke: 200 mm

Auf Kundenwunsch ist eine Isolierung nach dem A & A+ Standard möglich

Bildrechte https://jarni.homes

Außenbeschichtung: Vertikale Verkleidung mit Nadelholzbrett 20×140. Lackierung: Tikkurila Pinja W. Öltönung gemäß Tikkurila-Katalog. Dach: beschichtetes Technonicol Uniflex in 2 Schichten. Entwässerungssystem: Galeco . Fenster und Eingangstür : Kunststoff Grunhaus 70 mm mit schwarzer Außenlaminierung, doppelt verglast Fenster mit i-Beschichtung

Außen

Außenbeschichtung: Vertikale Verkleidung mit Nadelholzbrett 20×140.
Lackierung: Tikkurila Pinja W. Öltönung gemäß Tikkurila-Katalog.
Dach: beschichtetes Technonicol Uniflex in 2 Schichten.
Entwässerungssystem: Galeco
. Fenster und Eingangstür : Kunststoff Grunhaus 70 mm mit schwarzer Außenlaminierung, doppelt verglast Fenster mit i-Beschichtung

Bildrechte https://jarni.homes

INNEN

  • Wände : Verkleidung aus Weichholz, Güteklasse AB, Dicke 17–19 mm.
  • Böden : Egger-Laminatboden
  • Decken : Weichholzverkleidung, Nadelholz, Güteklasse AB, Dicke 12–14 mm. Lackiert in weißer Deckfarbe
  • Innentüren: Elporta Eco-Furnier weiß

Bildrechte https://jarni.homes

Badezimmer

  • Wände: Keramikfliese Kerama Marazzi Kaleidoskop 200×200 weiß, Fugenmasse dunkelgrau
  • Böden: Keramin Portland Granit 2 600×600, Fugenmasse dunkelgrau
  • Decken: Weichholzverkleidung, Nadelholz, Güteklasse AB, Stärke 12-14 mm. Lackiert in weißer Deckfarbe
  • Duschwanne : 800×800 Acryl, Trennwand aus gehärtetem Glas
  • Installation und Toilette: Eccellenza tecnica (Türkei)
  • Warmwasserbereiter: Thermex IF 100 eco
  • Waschbecken: mit Standfuß oder Waschbecken zur Montage über einer Waschmaschine

Bildrechte https://jarni.homes

Jarni modular Homes

Borovlyansky village, Borovaya street, 88

E-Mail:

info@jarni.by
jarni.homes

Services

Compare

Consent Management Platform von Real Cookie Banner